вас продукцию, вам необходимо оставить
контактный номер телефона или e-mail.
И наш менеджер свяжется с вами в ближайшее время.
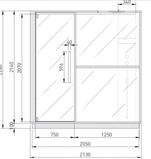
РАЗМЕРЫ
см 213 x 250 x 226 выс.
МОЩНОСТЬ
4,5 кВт макс.
230 В одна фаза - 400 В три фазы
ОТДЕЛКА
Аллюминий с лаковым покрытием RAL 7030
Наружные стены (видимые части): Керамогранит 3 мм
МАТЕРИАЛЫ САУНА
Внутренняя отделка и Оборудование: Канадский Хемлок
Двери из закаленного стекла 8 мм
Подножка: Керамогранит 3 мм
МАТЕРИАЛЫ ДУШ
Подножка: Керамогранит 3 мм
ХАРАКТЕРИСТИКИ/КОМПЛЕКТАЦИЯ
Оснащение сауны:
Светильник на светодиодах с хромотерапией
белый свет + 5 фиксированных цветов + 4 цикла
Деревянные скамейки
Каменка с камнями
Сенсорная панель управления
Автоматической функцией энергосбережения
Ведерко, встроенное в нижнюю скамейку
Скрытая электропроводка
Оснащение для установки внешней
аудиосистемы со встроенным динамиком
Деревянный ковшик
Песочные часы
Оснащение кабины:
Прогрессивный смеситель
Душевая лейка потолочной фиксации
с функцией антиизвесткового налёта
Ручной душ








